特性说明
1.KFN为方型可联结式组合,充分利用空间,占地节省;产品特殊设计,具有低噪音和高效率之特性。
2.整体结构坚实轻巧,本体及水盘采用强化玻璃纤维(F.R.P)制造,永不腐蚀。表面的面漆加紫外线抑制剂,能抵抗阳光侵袭破坏。
3.所有钢铁材料全部经过热浸镀锌处理,耐腐蚀,经久耐用。
4.特殊设计轴流式风机配以皮带减速机、噪音低、风量足,可加装特制水滴消音毯,消除水声。
5.采用特殊设计PVC收水器(止水器),阻止飞溅效果显著,压降损失轻微,飞溅损失在0.002%以下。
6.特殊设计散水器,口径大不会阻塞,但散水效果特佳,安装在塔体内部不受外界尘土杂物污染。
7.采用蜂巢式真空成型散热材,交错排列表面有沟槽,热交换效果特佳。
8.水盘采倾斜设计,易清洗、装水少,运转重量较低,但水槽特大,不虑吸入空气。

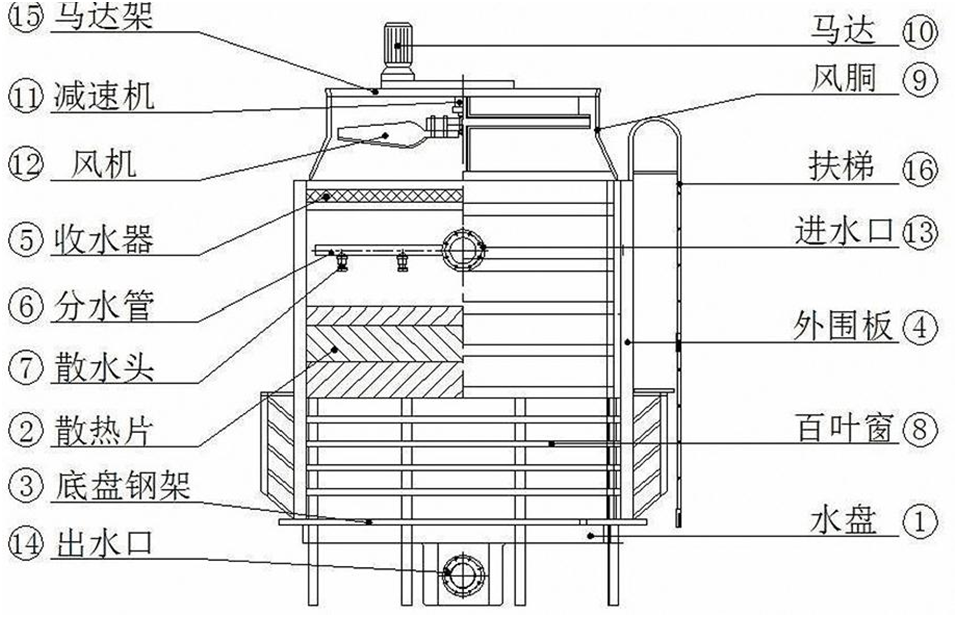
| 件号 | 零件 | PARTS | 材质MATERIAL |
| 9 | 风胴 | Fanstack | F.R.P |
| 10 | 马达 | Motor | |
| 11 | 减速机 | Reducer | |
| 12 | 风机 | Fan | |
| 13 | 进水口 | Waterinlet | |
| 14 | 出水口 | Wateroutlet | |
| 15 | 马达架 | Motorsupport | H.D.G.Steel |
| 16 | 扶梯 | Escalator | 热镀锡 |
结构图/structurechart
标准材质表/Standardmateriallist
| 件号 | 零件 | PARTS | 材质MATERIAL |
| 1 | 水盘 | Basin | F.R.P |
| 2 | 散热片 | Fill | P.V.C |
| 3 | 底盘钢架 | Floorframe | 热镀锡 |
| 4 | 外围板 | Peripheralplate | F.R.P |
| 5 | 收水器 | Watercollector | P.V.C |
| 6 | 分水管 | Distributionpipe | P.V.C |
| 7 | 散水头 | Nozzle | A.B.S |
| 8 | 百叶窗 | Intakelouver | P.V.C |






